24 BCC-02

May 2006

HHSRS VERSION 2

Yes

Yes

No

No

Fire

Vulnerable age

Related hazards

Ground Floor

Third (Top) Floor

Persons aged 60 years or over

None

Multiple locations

Secondary hazards

LIST OF RELEVANT MATTERS

LIKELIHOOD

A

A

-

m

Smoke/heat detectors

3

3

n

Fire fighting equipment

3

-

o

Lightning protection

2

3

OUTCOMES

3

a

Smoke/heat detectors

3

3

b

Means of escape

3

-

c

Combustible furnishings

3

-

d

Fire fighting equipment

3

-

e

Lightning protection

2

-

Key

3

Seriously defective

1

2

Defective

3

1

Not satisfactory

-

Satisfactory/NA

a

Heater/cooker position

b

Adequate Space Heating

c

Heating Defects

d

Clothes drying facilities

e

Number/siting of sockets

f

Electrical Installation

g

Non-fire resistant fabric

h

Smoke permeable fabric

i

Fire stops to cavities

j

Disrepair to fabric

k

Internal doors

l

Self-closers

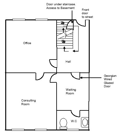
Front Elevation

Dwelling: Third Floor Rear Bedsit in a 1919, HMO

DESCRIPTION OF HAZARDS

Background: This bedsit is located on the top floor of a 4 storey plus basement (and sub-basement) building

which is in mixed use. The building as a whole comprises a mix of bedsits, flats and commercial

accommodation. There is a flat and bedsit within the basement/sub-basement, a commercial enterprise on the

ground floor, a self-contained flat on the first floor with two bedsits each on the second and third floors. The

first, second and third floors are all accessed via a staircase on the ground floor from which a staircase to the

lower floors is provided. The height of the third floor rear bedsit is effectively at sixth floor level above the rear

ground level.

A) Fire Precautions and Means of Escape: There is no fire detection and alarm system or emergency

lighting installation provided in the building except for a battery operated smoke detector located on the third

floor landing but this has been disabled. There are fire doors provided to this and the other bedsits, the first

floor flat, the entrance to the basement from the ground floor hall and the ground floor commercial rooms

although all the doors do not have self closers or heat and smoke seals fitted. There is an area of

approximately 6 metre squared varnished timber tongue and groove wall boarding on the third floor

landing/staircase. Within the bedsit itself, heating is provided by portable electric fires. The electrical

installation is old and of a suspect nature and multiple extension blocks are extensively used due to the limited

number of fixed power socket outlets. The condition of the installation is typical of that found elsewhere in the

building. There are no indoor facilities for clothes drying within the property as a whole. There is no fire blanket

or fire extinguisher provided within the dwelling or stairwell. There is no lightning protection provided.

Score: 12,763

RATING SCORES AFTER IMPROVEMENT

IMPROVE

Justification

NEW RATING

Av: Nos

A

B C D E

Average likelihood and harm outcomes for all persons aged 60 years or over, 1997-1999

Score: 100 (F-)

G H

I

J

F

24 BCC-02

May 2006

HEALTH AND SAFETY RATING SYSTEM SCORES

LIKELIHOOD

Low

High

1 in 18

Av Pre 1920 Flat: 1,681

18

< 4200 2400 1300 750 420 240 130

75

42

24

13

7.5

4

2.5

1.5 >

Justification

OUTCOMES

Class I

Class II

Class III

Class IV

Justification

RATING

Research has shown that non-self contained units in an HMO above three storeys have a

greater likelihood of the occurrence of a fire that can cause harm. The unit is on top of six

storeys (at the rear) and is the most remote from a safe exit in case of fire. The likelihood is

increased here (it is assumed that the electric cooker is sound and in safe condition)

because of the use of portable electric heaters, individual cookers, old and overloaded

electrical installations, combustible wall finishes, the lack of self closers and smoke seals to

doors (no protected route to a place of safety nor any secondary means of escape), the lack

of any suitable AFD system and the lack of clothe drying facilities and fire blankets. These

factors create a situation where the likelihood of coming to harm from uncontrolled fire and

toxic smoke is considerably increased. There is no lightening protection. The building is also

of mixed use.

%

Av Pre 1920 Flat: 5.6

21.5

< 0.05 0.15 0.3

0.7

1.5

3

7

15

26

38 >

Av: 0.0

0.5

< 0.05 0.15 0.3

0.7

1.5

3

7

15

26

38 >

Av: 27.7

46.4

< 0.05 0.15 0.3

0.7

1.5

3

7

15

26

38 >

Av: 66.7

31.6

< 0.05 0.15 0.3

0.7

1.5

3

7

15

26

38 >

In addition to increased likelihood of harm, the spread of harms is also likely to be

significantly worse than average. The third floor occupier has a greater travel distance to the

exit and place of safety (the unit is effectively six stories high at the rear and rescue via

windows is assumed to be difficult). There is no a suitable protected route and there is only

one route of escape. There is flammable wall covering in the escape route that would affect

this property - (the route of escape could become smoke logged). There would be no

warning from an AFD system should a fire occur.

Av. Pre 1920 Flat: 39

Likelihood to

1 in 560

Outcomes to

4.6

0.0 31.6 63.8

%

Provision of fixed heating in the bedsit; repair and upgrading of the electrical installation in

the bedsit and throughout the building; with provision of separate clothes drying facilities; an

automatic fire detection and alarm system covering the entire building; provision of a

protected route and alternative means of escape; and removal of the flammable wall

covering on the third floor; would reduce the likelihood of an occurrence and the spread of

outcomes. Even with these works being carried out, the likelihood of an occurrence will

remain greater than for an average pre-1920 flat but the spread of harms would be average.

Av:39

A

B C D E

F G H

I

J